土地 宇部市東平原1丁目④号地
所在地
宇部市東平原1丁目④号地
930万円
65.68坪
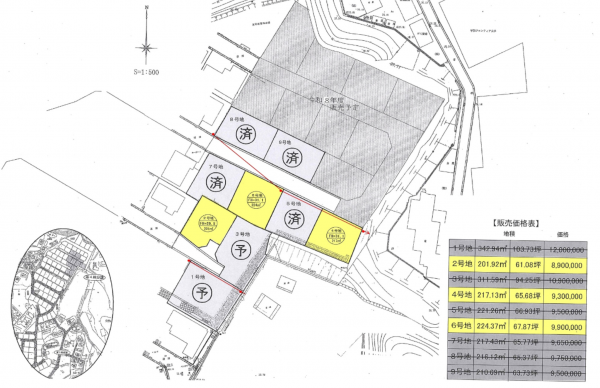
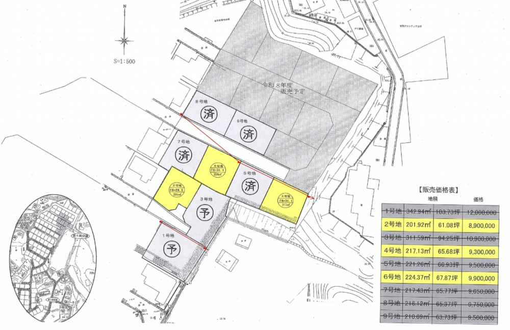
岩鼻駅から徒歩16分、閑静な住宅地「東平原1丁目」に位置する全4号地の分譲地です。
敷地面積はゆとりの約65坪。建築条件はありませんので、お好きなハウスメーカー・工務店で理想の住まいを自由に建築できます。
藤山小学校まで徒歩12分、藤山中学校まで徒歩15分と、子育て世代にも安心の住環境です。
周辺にはバス停や生活施設もそろい、穏やかで暮らしやすいロケーションが魅力です。
ウェスタまるき 小羽山店まで車で9分
セブン-イレブン 宇部中山店まで車で6分
月々の
支払例
支払例
万円
年
%
円
※西京銀行/借入金930万円、返済期間40年、金利0.700%変動金利)の場合
※審査により金利は変わる可能性があります。
物件概要
- 交通
-
宇部線 岩鼻駅 まで 徒歩16分
- 接道状況
- 土地面積
- 217.15㎡ (65.68坪)
- 建ぺい率
- 60%
- 容積率
- 200%
- 土地権利
- 所有権
- セットバック
- 無し
- 小学校区
- 藤山 ( 900m )
- 中学校区
- 藤山 ( 1200m )
- 私道負担
- 建築条件
- ー
- 地目
- 現況
- 更地
- 引渡時期
- 相談
- 上水道
- 公共
- 下水道
- 公共
- ガス
- 都市計画
- 非線引区域
- 用途地域
- 1種中高
- 設備・条件
- 備考
- 取引態様
- 仲介





