土地 宇部市大字東須恵第一原
◆ 駅徒歩2分の好立地
JR小野田線「長門長沢」駅まで徒歩わずか 2分。毎日の通勤・通学に便利な立地です。
◆ ゆとりある123坪超の広い土地
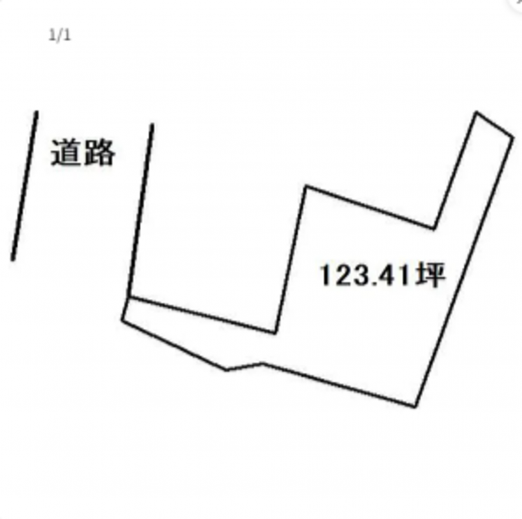
土地面積は 408㎡(約123.42坪) とゆったり。
平屋住宅・二世帯住宅・広い庭付き住宅など、理想のプランが実現しやすい広さです。
◆ 建築条件なし
お好きなハウスメーカー・工務店で建築可能。
自由度の高い家づくりを行いたい方におすすめです。
◆ 第一種住居地域
周辺は落ち着いた住環境で、利便性と住みやすさを兼ね備えています。
◆ 小学校まで徒歩圏内
原小学校まで 約1200m。子育て世帯にも安心の住環境。
◆ 西側3mの公道に面した間口11m
車両の出入りもしやすく、分筆や複数台駐車プランも検討可能です。
セブン-イレブン 宇部東須恵中原店まで徒歩約9分
原ふれあいセンターまで徒歩約14分
支払例
※西京銀行/借入金500万円、返済期間40年、金利0.700%変動金利)の場合
※審査により金利は変わる可能性があります。
物件概要
- 交通
-
小野田線 長門長沢駅 まで 徒歩2分
- 接道状況
- 西側 公道3m 間口約11m
- 土地面積
- 408.00㎡ (123.42坪)
- 建ぺい率
- 60%
- 容積率
- 200%
- 土地権利
- 所有権
- セットバック
- 無し
- 小学校区
- 原 ( 1000m )
- 中学校区
- 黒石 ( 3200m )
- 私道負担
- 建築条件
- なし
- 地目
- 宅地
- 現況
- 上物有
- 引渡時期
- 相談
- 上水道
- 下水道
- ガス
- 都市計画
- 非線引区域
- 用途地域
- 1種住居
- 設備・条件
- 備考
- 取引態様
- 仲介





