土地 宇部市大字東須恵
所在地
宇部市大字東須恵
776万円
67.46坪
\建築条件なし!67坪のゆとりある敷地で理想の住まいを実現/
閑静な住宅地で落ち着いた住環境が魅力です。
周辺は保育園や郵便局、銀行など生活施設が揃い、静かな環境で子育てにも安心です。
・宇部市立原保育園まで徒歩約12分(約909m)
・妻崎郵便局まで徒歩約12分(約910m)
・山口銀行厚南出張所まで徒歩約20分(約1566m)
・ドラッグストアモリ宇部流川店まで徒歩約15分(約1164m)
・セブンイレブン宇部東須恵中原店まで徒歩約7分(約552m)
月々の
支払例
支払例
万円
年
%
円
※西京銀行/借入金776万円、返済期間40年、金利0.700%変動金利)の場合
※審査により金利は変わる可能性があります。
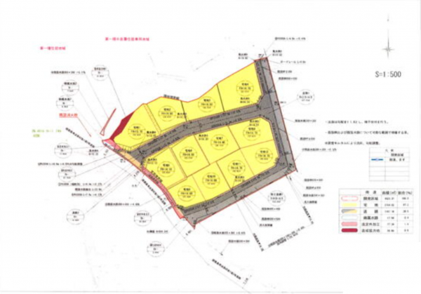
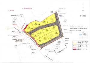
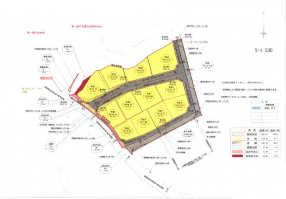
物件概要
- 交通
-
小野田線 長門長沢駅 まで 徒歩7分
バス停長沢集会所(ハッピー) まで 徒歩2分
- 接道状況
- 土地面積
- 公簿 223.02㎡ (67.46坪)
- 建ぺい率
- 60%
- 容積率
- 200%
- 土地権利
- 所有権
- セットバック
- 無し
- 小学校区
- 原 ( 933m )
- 中学校区
- 黒石 ( 2288m )
- 私道負担
- 建築条件
- なし
- 地目
- 宅地
- 現況
- 更地
- 引渡時期
- 相談
- 上水道
- 公共
- 下水道
- 公共
- ガス
- プロパン個別
- 都市計画
- 非線引区域
- 用途地域
- 1種中高
- 設備・条件
- 側溝
- 備考
- 取引態様
- 仲介





