中古一戸建て 宇部市大字東岐波
所在地
宇部市大字東岐波
350万円
39.53坪
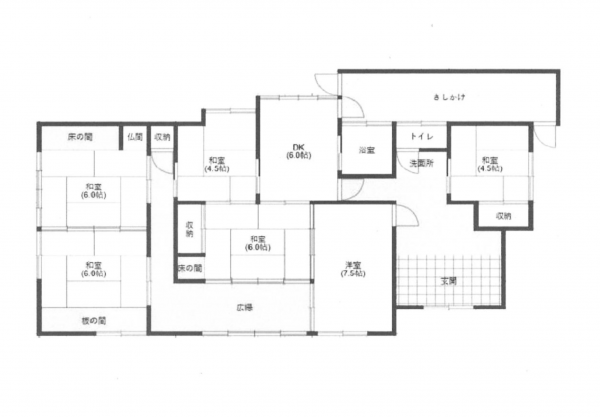
6DK
広い家庭菜園あり
ファミリーマート宇部東岐波店まで約273m(徒歩4分)
スーパー大和丸尾店まで約655m(徒歩9分)
月々の
支払例
支払例
万円
年
%
円
※西京銀行/借入金350万円、返済期間40年、金利0.700%変動金利)の場合
※審査により金利は変わる可能性があります。
物件概要
- 交通
-
宇部線 丸尾駅 まで 徒歩6分
- 接道状況
- 北東側 公道3m 間口約16.8m 舗装有
- 土地面積
- 公簿 472.00㎡ (142.78坪)
- 建物面積
- 130.69㎡ (39.53坪)
- 築年数
-
1968年
(昭和43)
12月
築57年 - 建ぺい率
- 60%
- 容積率
- 200%
- 土地権利
- 所有権
- 構造および階数
- 木造 地上1階建
- 小学校区
- 東岐波 ( 1146m )
- 中学校区
- 東岐波 ( 714m )
- 私道負担
- 無
- 地目
- 畑
- 現況
- 空
- 引渡時期
- 即時
- 駐車場
- 有
- 上水道
- 下水道
- ガス
- 都市計画
- 非線引区域
- 用途地域
- 1種中高
- 設備・条件
- 備考
- 取引態様
- 仲介





