中古一戸建て 宇部市西本町1丁目
所在地
宇部市西本町1丁目
2,790万円
29.55坪
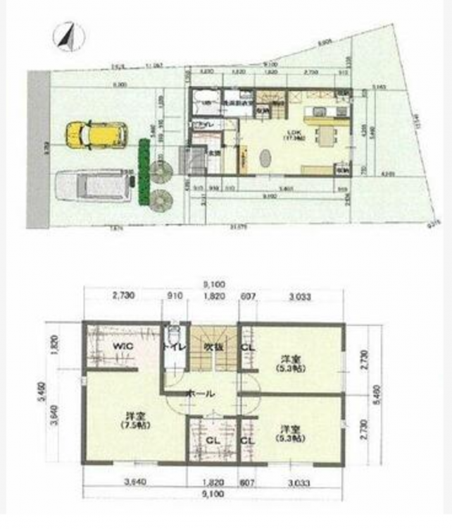
3LDK
\便利な街中で、ゆとりある暮らしを/
駅まで徒歩5分で通勤・通学が便利。
スーパー徒歩5分、コンビニ徒歩4分で、毎日の買い物がストレスフリーです。
保育園も徒歩12分で、子育て環境も整っています。
築3年の未入居物件で室内はきれいそのまま。
広々3LDKに加え、ファミリークローゼットやLDK床暖房など、快適な生活を支える設備が充実。
駐車2台以上可能で、全員がのびのび暮らせる住まいです。
・宇部市立新川保育園まで徒歩12分(約946m)
・山口銀行西新川支店まで徒歩2分(約141m)
・宇部新川駅前郵便局まで徒歩7分(約499m)
・スーパーセンタートライアル宇部中央店まで徒歩5分(約395m)
・ローソン宇部中央町一丁目店まで徒歩4分(約287m)
月々の
支払例
支払例
万円
年
%
円
※西京銀行/借入金2,790万円、返済期間40年、金利0.700%変動金利)の場合
※審査により金利は変わる可能性があります。
物件概要
- 交通
-
宇部線 宇部新川駅 まで 徒歩5分
バス停三炭町入口(市営) まで 徒歩2分
- 接道状況
- 西側
- 土地面積
- 218.36㎡ (66.05坪)
- 建物面積
- 97.70㎡ (29.55坪)
- 築年数
-
2023年
(令和5)
8月
築2年 - 建ぺい率
- 80%
- 容積率
- 400%
- 土地権利
- 所有権
- 構造および階数
- 木造 地上2階建
- 小学校区
- 新川 ( 1300m )
- 中学校区
- 桃山 ( 2200m )
- 私道負担
- 地目
- 宅地
- 現況
- 空
- 引渡時期
- 相談
- 駐車場
- 有 普通2台
- 上水道
- 公共
- 下水道
- 公共
- ガス
- 都市ガス
- 都市計画
- 非線引区域
- 用途地域
- 商業
- 設備・条件
- 床暖房、システムキッチン、カウンターキッチン、IHクッキングヒーター、食器洗浄乾燥機、シャンプードレッサー、モニタ付インターホン、洗浄便座、ウォークインクローゼット、複層ガラス、1BOX駐車可、ペット可、駐車場2台分、トイレ2箇所、LDK床暖房付き
- 備考
- ◇その他交通◇中国JRバス・JR九州バス・宇部市営バス:宇部新川駅バス停◆駐車2台以上可◆屋外給排水/照明/カーテン/外構工事含むおすすめポイント◆2階建て3LDK◆広々ファミリークローゼット◆LDK床暖房つき※未入居住宅です。
- 取引態様
- 仲介





