新築一戸建て 宇部市黒石北4丁目
約63坪の敷地に建つ、築3年・未入居のオール電化住宅です。
実際に居住されたことがないため、室内はきれいな状態が保たれており、
新生活を気持ちよくスタートできる一棟です。
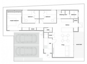
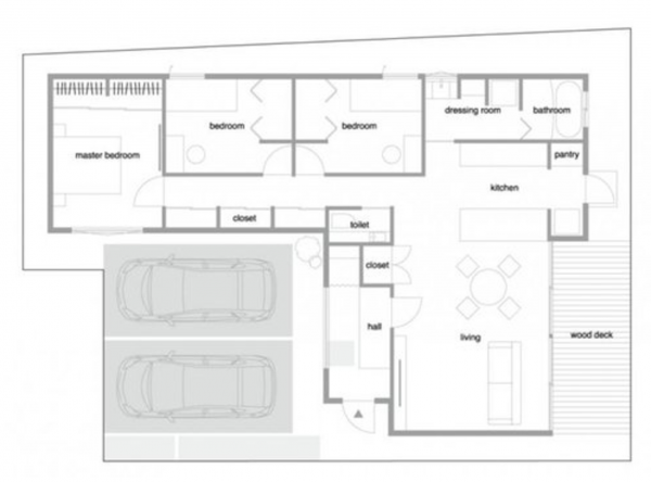
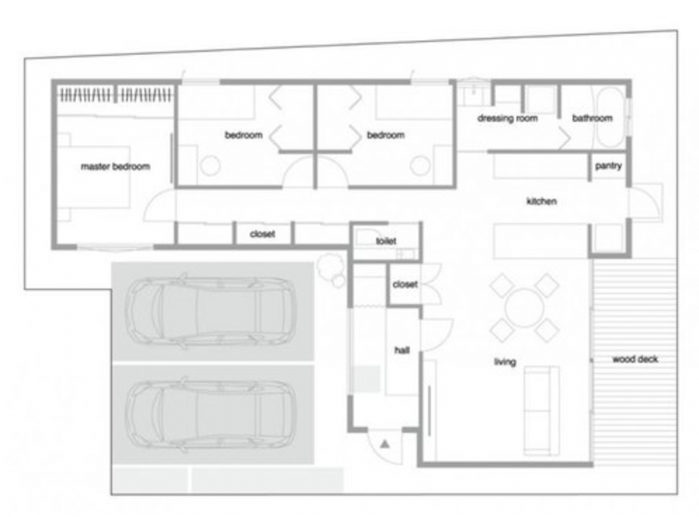
平屋建ての3LDKで、生活動線がコンパクトにまとまった間取り。
階段の上り下りがなく、将来を見据えた住まいとしても検討しやすい構成です。
ゆめタウン宇部まで徒歩2分という立地は大きな魅力で、
日々の買い物を徒歩で済ませることができる利便性の高さが特長。
ドン・キホーテやアルク、まるきなども近く、用途に応じて使い分けができます。
IH・食器洗浄乾燥機・浴室乾燥機・エコキュートなど設備も充実。
オール電化ならではの使いやすさに加え、複層ガラスや床下収納など、
住まいとしての基本性能もしっかり備わっています。
駐車は普通車2台分可能。
小学校まで約439m、中学校まで約959mと通学距離も比較的近く、
子育て世帯にも検討しやすい住環境です。
「築浅・未入居の平屋を探している」
「買い物のしやすさを重視したい」
そんな方にぜひ一度ご覧いただきたい物件です。
ゆめタウン宇部まで徒歩2分
ドン・キホーテ宇部店まで車で約4分
アルク厚南店まで車で約5分
ウェスタまるき西割店まで車で約3分
セブンイレブン宇部厚南店まで徒歩10分
支払例
※西京銀行/借入金3,980万円、返済期間40年、金利0.700%変動金利)の場合
※審査により金利は変わる可能性があります。
物件概要
- 交通
-
山陽線 宇部駅 バス13分乗車 バス停ゆめタウン宇部 まで 徒歩4分
宇部線 宇部駅 バス13分乗車 バス停ゆめタウン宇部 まで 徒歩4分
- 接道状況
- 西側
- 土地面積
- 210.00㎡ (63.52坪)
- 建物面積
- 101.44㎡ (30.68坪)
- 築年数
-
2022年
(令和4)
9月
築3年 - 建ぺい率
- 60%
- 容積率
- 180%
- 土地権利
- 所有権
- 構造および階数
- 木造 地上1階建
- 小学校区
- 黒石 ( 439m )
- 中学校区
- 黒石 ( 959m )
- 私道負担
- 地目
- 宅地
- 現況
- 完成済
- 引渡時期
- 駐車場
- 普通2台
- 上水道
- 公共
- 下水道
- 公共
- ガス
- 都市計画
- 非線引区域
- 用途地域
- 1種中高
- 設備・条件
- 側溝、オール電化、システムキッチン、カウンターキッチン、IHクッキングヒーター、食器洗浄乾燥機、シャンプードレッサー、浴室乾燥機、モニタ付インターホン、洗浄便座、複層ガラス、1BOX駐車可、追い焚き、ペット可、駐車場2台分、床下収納、エコキュート
- 備考
- 取引態様
- 仲介





