中古一戸建て 山陽小野田市日の出3丁目
所在地
山陽小野田市日の出3丁目
800万円
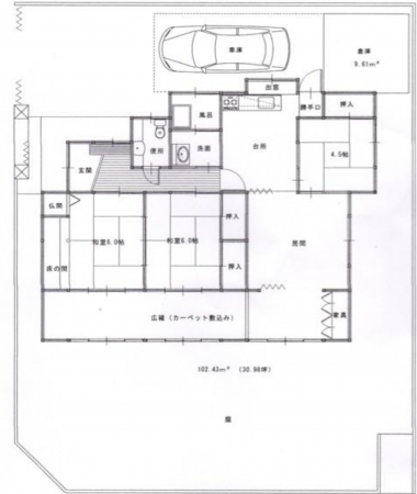
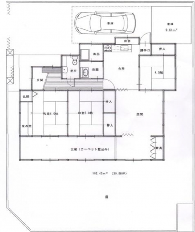
35.74坪
3LDK
\角地ならではの開放感と快適性!/
2方向に道路が接しており、日当たり・通風ともに良好〇
明るく風通しの良い住まいです。
生活施設が徒歩圏内に充実し、忙しい毎日をサポートします。
・山陽小野田市立日の出保育園まで徒歩約6分(約440m)
・高千帆郵便局まで徒歩約4分(約254m)
・山口銀行小野田駅前支店まで徒歩約9分(約668m)
・DiREX小野田店まで徒歩約4分(約315m)
・セブンイレブン山陽小野田日の出店まで徒歩約5分(約391m)
月々の
支払例
支払例
万円
年
%
円
※西京銀行/借入金800万円、返済期間40年、金利0.700%変動金利)の場合
※審査により金利は変わる可能性があります。
物件概要
- 交通
-
山陽線 小野田駅 まで 徒歩6分
バス停東高須(サンデン) まで 徒歩6分
- 接道状況
-
南側 公道6m 間口約13m 有
西側4m 間口約16m 有 - 土地面積
- 285.86㎡ (86.47坪)
- 建物面積
- 118.17㎡ (35.74坪)
- 築年数
-
1979年
(昭和54)
3月
築46年 - 建ぺい率
- 60%
- 容積率
- 200%
- 土地権利
- 所有権
- 構造および階数
- 木造 地上1階建
- 小学校区
- 高千帆 ( 1274m )
- 中学校区
- 高千帆 ( 1485m )
- 私道負担
- なし
- 地目
- 宅地
- 現況
- 空
- 引渡時期
- 即時
- 駐車場
- 有 1台
- 上水道
- 下水道
- 公共
- ガス
- プロパン個別
- 都市計画
- 非線引区域
- 用途地域
- 準工業
- 設備・条件
- 側溝、床下収納、庭
- 備考
- 取引態様
- 仲介





