新築一戸建て 宇部市松崎町②号棟
所在地
宇部市松崎町②号棟
2,088万円
28.90坪
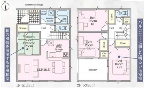
4LDK
JR岩鼻駅まで徒歩7分。毎日の通勤・通学に便利なロケーションに、
落ち着いた住環境が魅力の新築2階建て住宅が登場しました。
敷地はゆとりある 50坪超。駐車スペースは2台分確保され、
休日のお出かけや来客にも安心です。
LDKは 15帖以上で南向き。明るい光が差し込むリビングは、
家族が自然と集まる心地よい空間に。
1階には使い勝手の良い 和室も備え、客間やお子様の遊びスペースにも便利です。
アルク厚南店まで車で3分
ローソン宇部東平原二丁目店まで車で2分
月々の
支払例
支払例
万円
年
%
円
※西京銀行/借入金2,088万円、返済期間40年、金利0.700%変動金利)の場合
※審査により金利は変わる可能性があります。
物件概要
- 交通
-
宇部線 岩鼻駅 まで 徒歩7分
- 接道状況
- 西側 公道5.7m 間口約13.1m
- 土地面積
- 実測 178.28㎡ (53.92坪)
- 建物面積
- 95.57㎡ (28.90坪)
- 築年数
- 2026年 (令和8) 2月 完成予定
- 建ぺい率
- 40%
- 容積率
- 60%
- 土地権利
- 所有権
- 構造および階数
- 木造 地上2階建
- 小学校区
- 藤山 ( 1290m )
- 中学校区
- 藤山 ( 1373m )
- 私道負担
- 地目
- 宅地
- 現況
- 空
- 引渡時期
- 期日指定
- 駐車場
- 有 普通3台
- 上水道
- 公共
- 下水道
- 公共
- ガス
- 都市計画
- 非線引区域
- 用途地域
- 1種低層
- 建築確認番号
- 第R07SHC122420号
- 設備・条件
- 側溝、オール電化、ルーフバルコニー、システムキッチン、カウンターキッチン、IHクッキングヒーター、食器洗浄乾燥機、シャンプードレッサー、浴室乾燥機、モニタ付インターホン、洗浄便座、複層ガラス、1BOX駐車可、追い焚き、ペット可、駐車場2台分、駐車場3台分、床下収納、エコキュート、トイレ2箇所
- 備考
- 建物面積に別途ルーフバルコニー約9.72平米有り
- 取引態様
- 仲介





