新築一戸建て 宇部市床波4丁目①号棟
所在地
宇部市床波4丁目①号棟
2,080万円
31.36坪
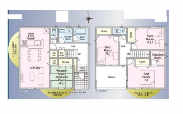
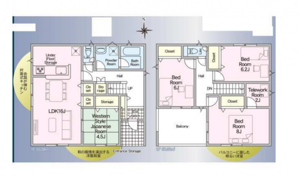
4LDK
オール電化で光熱費も抑えやすい省エネ住宅。
IH・食洗機・浴室乾燥など設備充実で、収納もたっぷり。
ルーフバルコニー付きの建設性能評価取得予定物件です。
ファミリーマート宇部西岐波店まで徒歩6分(435m)
床波郵便局まで徒歩16分(1254m)
JA山口県西岐波支所まで徒歩16分(1257m)
月々の
支払例
支払例
万円
年
%
円
※西京銀行/借入金2,080万円、返済期間40年、金利0.700%変動金利)の場合
※審査により金利は変わる可能性があります。
物件概要
- 交通
-
宇部線 床波駅 まで 徒歩20分
- 接道状況
- 東側 公道5.4m 間口約15.8m
- 土地面積
- 実測 164.54㎡ (49.77坪)
- 建物面積
- 103.68㎡ (31.36坪)
- 築年数
- 建ぺい率
- 60%
- 容積率
- 200%
- 土地権利
- 所有権
- 構造および階数
- 木造 地上2階建
- 小学校区
- 西岐波 ( 927m )
- 中学校区
- 西岐波 ( 748m )
- 私道負担
- 有 103.86 ㎡
- 地目
- 田
- 現況
- 空
- 引渡時期
- 期日指定
- 駐車場
- 有
- 上水道
- 公共
- 下水道
- 公共
- ガス
- 都市計画
- 非線引区域
- 用途地域
- 1種住居
- 設備・条件
- オール電化、ルーフバルコニー、システムキッチン、カウンターキッチン、IHクッキングヒーター、シャンプードレッサー、浴室乾燥機、モニタ付インターホン、洗浄便座、複層ガラス、床下収納、トイレ2箇所
- 備考
- 取引態様
- 仲介





